物件の特徴
-
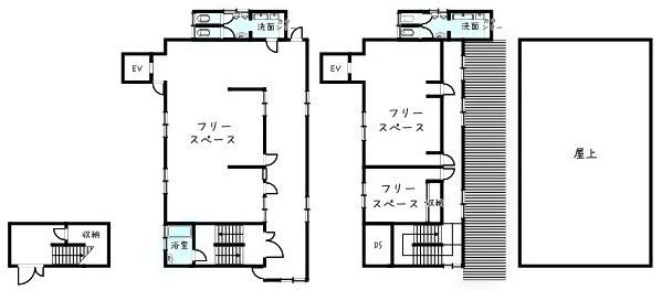
エレベーター
セールスポイント
【事務所・倉庫に適す♪】
●京阪バス「北花山」停徒歩3分
山科駅・大宅・三条京阪方面行き!
●土地71坪、建坪77坪
●間口13.2m
ポイント
担当者のコメント
基本情報
- 物件名
- 北花山市田町
- 価格
- 1,998万円
- 管理費
- -
- 修繕積立金
- -
- 間取り/詳細
- 1R
- 建物面積
- 255.17㎡
- 土地面積
- 71.24坪(235.53㎡)
- バルコニー面積
- -
- 種別/構造
- 中古一戸建/木造
- 築年月
- 1111年1月(築915年)
- 所在階
- -/2階建 地下1階
- 方角
- 東
- 土地権利
- 所有権
- 借地料
- -
- 用途地域
- 第一種低層住居専用
- 総戸数
- -
- リフォーム
- リノベーション
- その他条件
詳細情報
- 設備条件
-
- 都市ガス
- 公営水道
- 公共下水
- エレベーター
- 設備(その他)
-
-
-
- 駐車場/月額
- -/-
- 土地権利
- 所有権
- 国土法届出
- 不要
- 用途地域
- 第一種低層住居専用
- 取引態様
- 専属専任媒介
- 現況
- 空家
- 引渡し
- 相談
- 物件番号
- 82182618
- 情報更新日
- 2026年02月11日
- 更新予定日
- 2026年02月25日
- 備考
- 2021年 屋上改修工事
-
ドラッグストア
ドラッグユタカ山科北花山店
478m(6分)
-
コンビニエンスストア
セブンイレブン 西野八幡田町店
643m(9分)
-
スーパー
FRESCO(フレスコ) 北花山店
542m(7分)
-
郵便局
京都北花山郵便局
704m(9分)
-
小学校
鏡山小学校
1180m(15分)
-
中学校
花山中学校
724m(10分)
近隣の物件
北花山市田町
1,998万円
-
1R(255.17㎡)









































・ドラッグユタカ…歩6分(約478m)
・セブンイレブン…歩9分(約643m)
・フレスコ…歩7分(約542m)
・郵便局…歩9分(約704m)
□□ 通 学 □□
・鏡山小学校…歩15分(約1180m)
・花山中学校…歩10分(約724m)
●おうちカンパニーの宣言!●
「新居は“いいところ”も“わるいところ”も知った上で決めたい。」
そんな当たり前の思いに寄り添う住宅会社でありたいと思っています。
おうちカンパニーではおうちの“わるいところ”もお伝えし、
「知っていたら ここにしなかった」がなくなることに挑戦します!